首頁
整裝產品
拎包輕奢版
拎包智尊版
梵客微裝
全屋定制
定制整裝
裝修案例
精品案例
全景VR設計
生活+診
設計團隊
大咖設計師
德標工程
全球材料
德標工藝
服務保障
0元分期
關于梵客
品牌介紹
新聞動態
10大理由
家裝講堂
聯系我們
網頁預約
免費量尺
上門量房
設計方案
到門店看方案
簽訂合同
準備材料
進場施工
您當前的位置:
閆北平設計師
戶型: 二居
風格: 簡歐
面積: 105.0㎡
介紹:
客廳的空間開敞,設計自由??蛷d墻面以白色涂料為主,追求一種光潔的質感,給人一種明快的感覺。
算算這樣裝修需要多少錢?
有參考,花錢更有譜
餐廳
康乃馨客廳
主臥室
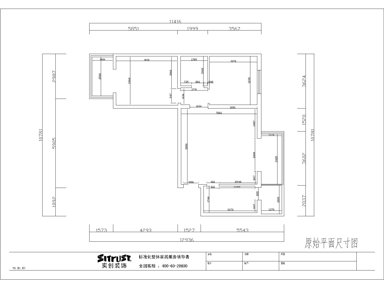
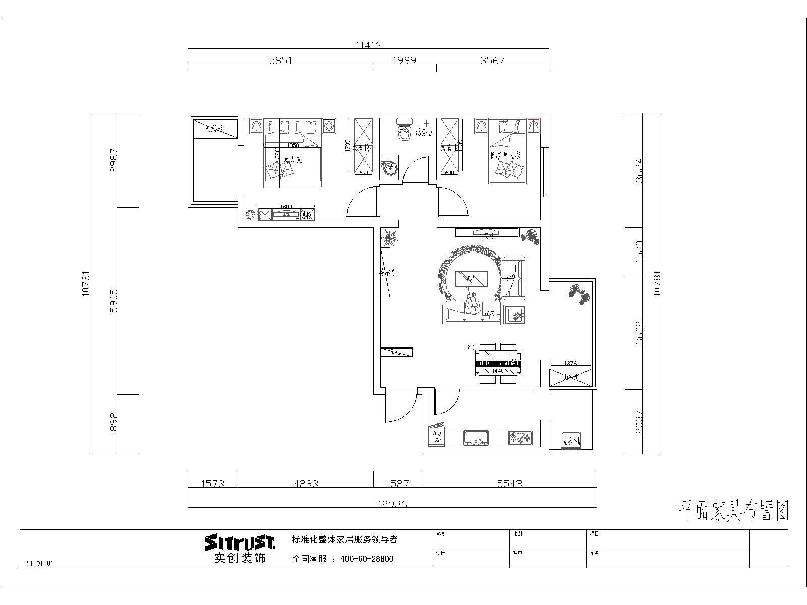
康乃馨李先生平面布置圖-Model
康乃馨李先生原始尺寸圖-Model
中信新城120平兩居美式裝修風格
美式 | 二居 | 120.0㎡
歐式別墅大宅
簡歐 | 別墅 | 320.0㎡
精心設計的完美典線,精益求精的細節處理,帶給家人不盡的舒服觸感
簡歐 | 二居 | 105.0㎡
92平米二居室混搭風格裝修案例
混搭 | 二居 | 92.0㎡
九龍山莊95平現代簡約裝修案例
現代簡約 | 二居 | 95.0㎡
宏盛家園108平兩居美式裝修風格
美式 | 二居 | 108.0㎡
龍鄉小區98平北歐風格裝修案例
北歐 | 二居 | 98.0㎡
鴻坤理想城84平北歐風格裝修案例
北歐 | 二居 | 84.0㎡
專注整體家裝
設計師提供專業服務
客戶選擇梵客
家居體驗館
自有全屋定制工廠
微信二維碼
微博二維碼
北京梵客家居科技有限公司
備案號:京ICP備17073616號
新用戶專享優惠