首頁
整裝產品
拎包輕奢版
拎包智尊版
梵客微裝
全屋定制
定制整裝
裝修案例
精品案例
全景VR設計
生活+診
設計團隊
大咖設計師
德標工程
全球材料
德標工藝
服務保障
0元分期
關于梵客
品牌介紹
新聞動態
10大理由
家裝講堂
聯系我們
網頁預約
免費量尺
上門量房
設計方案
到門店看方案
簽訂合同
準備材料
進場施工
您當前的位置:
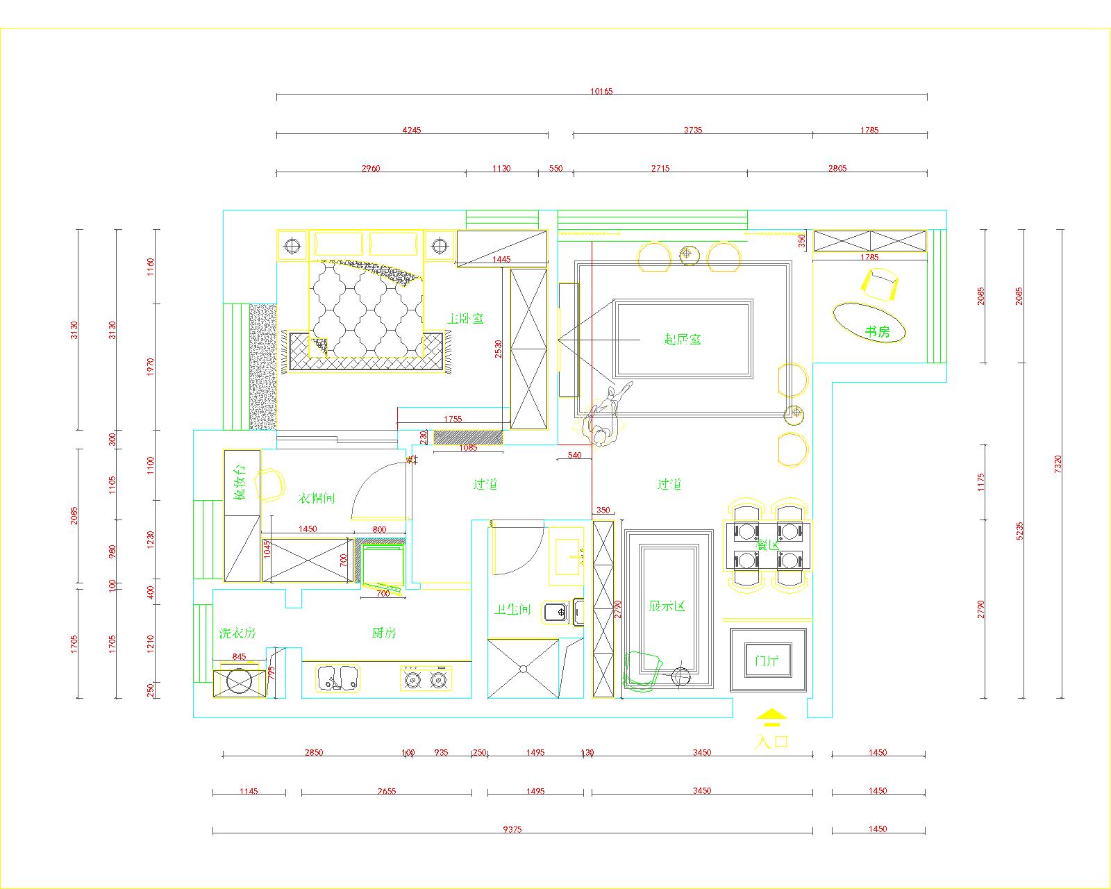
閆北平設計師
戶型: 別墅
風格: 簡歐
面積: 320.0㎡
介紹:
常住人口5人,兒子正在上中學階段。要求現代歐式,設計儲藏功能要多,空間利用合理.老人一起住.要求設計合理,儲藏功能要多
算算這樣裝修需要多少錢?
有參考,花錢更有譜
11111111111副本
aaaaaa
ccccc
餐廳
客廳AA
案例封面1600×1200-恢復的
歐式別墅大宅
簡歐 | 別墅 | 320.0㎡
精心設計的完美典線,精益求精的細節處理,帶給家人不盡的舒服觸感
簡歐 | 二居 | 105.0㎡
中海城金石苑小區125平簡歐
簡歐 | 三居 | 125.0㎡
簡歐風
簡歐 | 二居 | 100.0㎡
簡歐 | 別墅 | 190.0㎡
東恒時代83㎡輕奢簡歐混搭
| 二居 | 83.0㎡
管家嶺
| 別墅 | 300.0㎡
拉斐水岸
現代簡約 | 別墅 | 260.0㎡
專注整體家裝
設計師提供專業服務
客戶選擇梵客
家居體驗館
自有全屋定制工廠
微信二維碼
微博二維碼
北京梵客家居科技有限公司
備案號:京ICP備17073616號
新用戶專享優惠