空氣中都漂浮著悠閑味道,這樣的婚房好喜歡
地中海 | 一居 | 60.0㎡
網頁預約
免費量尺
上門量房
設計方案
到門店看方案
簽訂合同
準備材料
進場施工
您當前的位置:
閆北平設計師
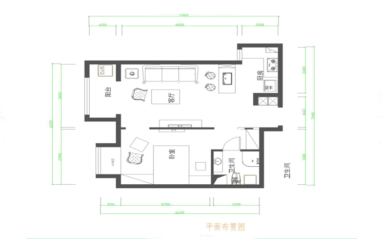
戶型: 一居
風格: 地中海
面積: 60.0㎡
介紹:
地中海裝修風格,整套裝修以地中海的天空、海洋、沙灘,就連空氣中都漂浮著悠閑味道,藍色與白色無處不在,好像薄紗一般輕柔,讓人感到自由自在,心胸開闊,大量使用這類色彩裝飾的居室空間,似乎讓窗外的天空也一樣寧靜、悠遠
算算這樣裝修需要多少錢?
有參考,花錢更有譜
新用戶專享優惠