【梵客家裝】12萬精裝中式風格三居室
中式 | 三居 | 150.0㎡
網頁預約
免費量尺
上門量房
設計方案
到門店看方案
簽訂合同
準備材料
進場施工
您當前的位置:
喬實賽設計師
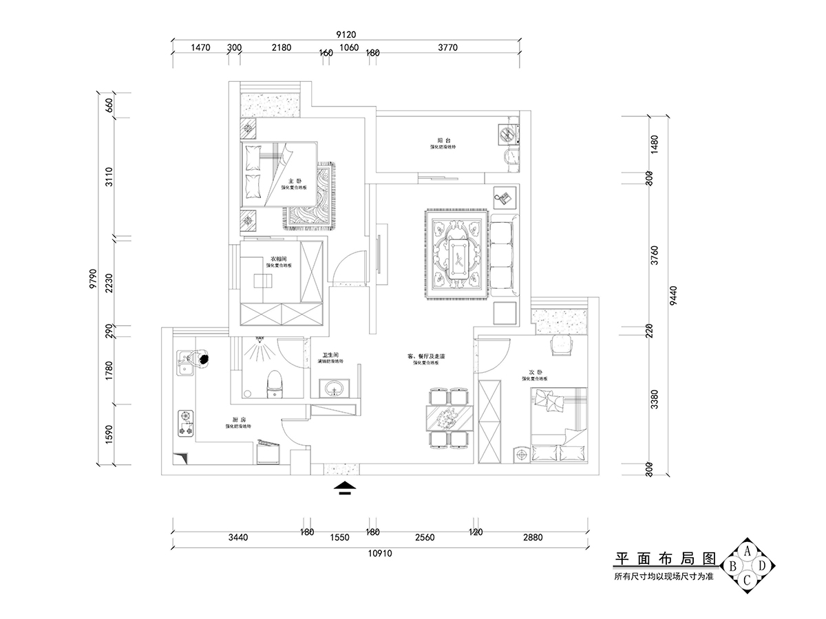
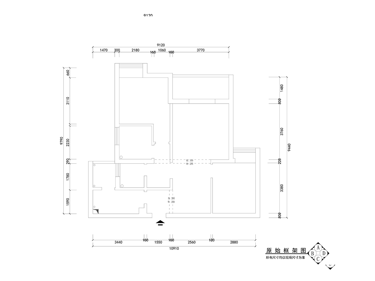
戶型: 三居
風格: 現代簡約
面積: 98.0㎡
介紹:
客廳整體色調上在黑白灰的素描體系里,體現出簡約的現代感,沙發旁邊墻體導致整個客廳略微有點小,采用鏡面材質進行空間的延伸感。餐廳在材質上也客廳相呼應,同時也形成一系列的對比,增加空間的層次感,鏡面的大量使用,使得原本不大的餐廳空間顯得延伸感特別強。
算算這樣裝修需要多少錢?
有參考,花錢更有譜
新用戶專享優惠