首頁
整裝產品
拎包輕奢版
拎包智尊版
梵客微裝
全屋定制
定制整裝
裝修案例
精品案例
全景VR設計
生活+診
設計團隊
大咖設計師
德標工程
全球材料
德標工藝
服務保障
0元分期
關于梵客
品牌介紹
新聞動態
10大理由
家裝講堂
聯系我們
網頁預約
免費量尺
上門量房
設計方案
到門店看方案
簽訂合同
準備材料
進場施工
您當前的位置:
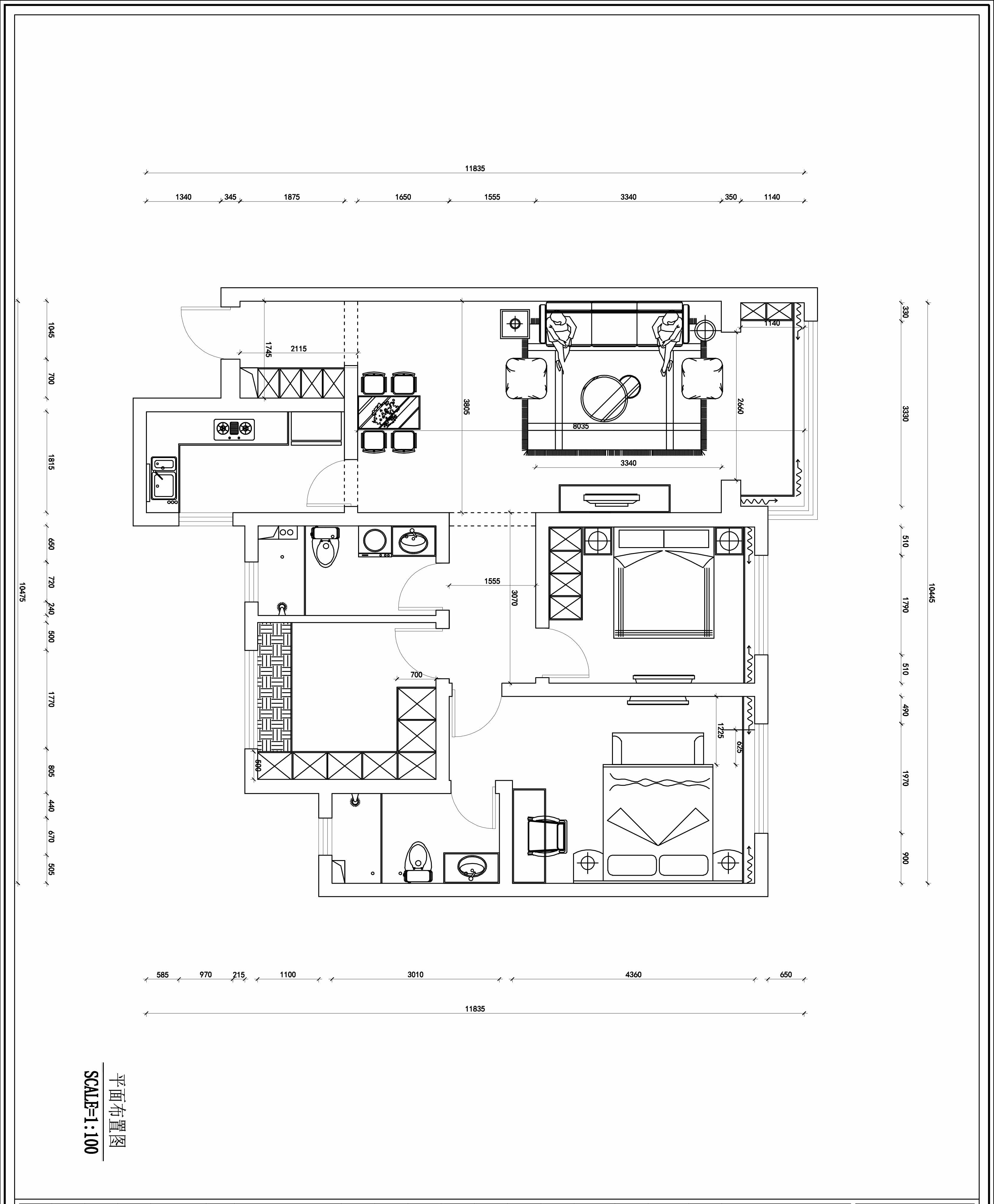
王茜設計師
戶型: 三居
風格: 新中式
面積: 110.0㎡
介紹:
客戶是一對工作特別忙的中年夫婦,平日的繁忙使得他們希望回家后有一份恬靜安逸的舒適空間。這個設計把品質,舒適,輕奢的設計風格和元素融入整個空間。
算算這樣裝修需要多少錢?
有參考,花錢更有譜
潮白河孔雀城1
潮白河孔雀城3
潮白河孔雀城4
潮白河孔雀城5
潮白河孔雀城6
平面布置圖
【梵客家裝】12萬精裝中式風格三居室
中式 | 三居 | 150.0㎡
追求功能與形式的完美統一、 優雅獨特、 簡潔明快的設計風格
新中式 | 四居 | 240.0㎡
彩虹嘉園三室兩廳現代簡約
現代簡約 | 三居 | 120.0㎡
康樂里小區三室兩廳簡美風
美式 | 三居 | 132.0㎡
傳統歐式家居的奢華與現代家居的實用性完美地結合
現代簡約 | 三居 | 140.0㎡
海逸半島
新中式 | 三居 | 121.0㎡
青云店大東社107平地中海式
新中式 | 三居 | 107.0㎡
潮白河孔雀城110㎡兩居室現代簡約風格
新中式 | 三居 | 110.0㎡
專注整體家裝
設計師提供專業服務
客戶選擇梵客
家居體驗館
自有全屋定制工廠
微信二維碼
微博二維碼
北京梵客家居科技有限公司
備案號:京ICP備17073616號
新用戶專享優惠