您當前的位置:
來源:梵客家裝 關鍵詞:青島裝修公司,新中式裝修設計 1061 2021-10-12
端午節與春節、清明節、中秋節并稱為中國民間的四大傳統節日。 自古以來端午節便有劃龍舟及食粽等節日活動。2006年5月,國務院將其列入首批國家級非物質文化遺產名錄
中國文化博大精深源遠流長,在中國文化風靡全球的現今時代,中式元素與現代材質的巧妙兼柔,唐宋家具、明清窗欞、布藝床品相互輝映,再現了移步變景的精妙小品。
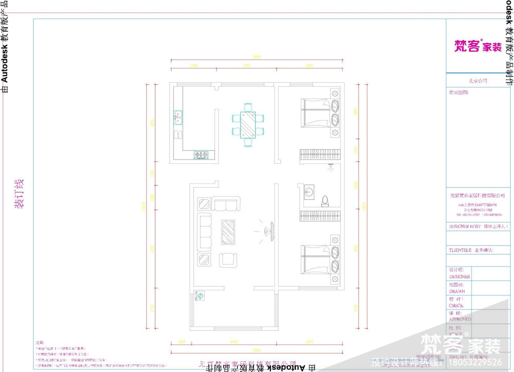
香山美墅120平 三室兩廳平面戶型圖 新中式裝修

新中式風格誕生于中國傳統文化復興的新時期,伴隨著國力增強,民族意識逐漸復蘇,人們開始從紛亂的“摹仿”和“拷貝”中整理出頭緒。在探尋中國設計界的本土意識之初,逐漸成熟的新一代設計隊伍和消費市場孕育出含蓄秀美的新中式風格。
客廳 精致且通透的客廳,中式布藝的沙發看起來比較氣質多彩的大理石是背景墻同樣讓客廳穩重的氛圍中多了些調皮的色彩。
餐廳 首先看到的是水墨畫的背景墻,這叫文藝范,加上一套舒適的餐桌組合,讓人享受整個就餐過程,一盞方形的中式吊燈,感覺整體更加舒適
臥室 寬闊的飄窗是最具吸引了的地方,簡單的木線條加石膏板做出的吊頂感覺很簡潔,寬闊的軟包加上柔軟的床,使臥室具有歸屬感
聲明:本文由梵客家裝提供,轉載請聲明出處!
讓家一大再大的體驗
已有 86 位業主獲得服務
新用戶專享優惠