您當前的位置:
來源:梵客家裝 關鍵詞:天津裝修公司,天津裝修公司排名,梵客家裝 1056 2021-10-12
康先生和康太太從小在北京胡同院兒長大,他們的生活和胡同息息相關。承載著兒時的記憶和對未來美好生活的追求,康先生新家的裝修之路開始了......
先生是攝影師,太太是郵政工作人員,夫妻二人喜歡旅行,喜歡老舊物件,平日逗逗貓、聽聽評書、做做手工,日子過得愜意有情趣。
設計師張曉紅和康先生溝通后,深諳業主心思,結合二人的興趣愛好及生活習慣,最終以新中式混搭工業風來打造新家。
新中式&工業風
新中式風格誕生于中國傳統文化復興的新時期,將中式元素與現代材質巧妙兼柔,具有含蓄美,體現中國風。這種風格繼承了明清時期家居理念的精華,將其中的經典元素提煉并加以豐富,給傳統家居文化注入新氣息。
工業風在家庭裝修中比較少見,多用于公共空間裝修,比如酒吧、餐廳等。家庭裝修中的工業風一般以點綴的方式出現,比如色調采用黑白灰色系,磚墻或原始水泥墻,裸露的管線,做舊的原木,金屬質感的家具或用品,燈具和燈泡等。
新中式融入工業風,既能表達業主熱愛中國傳統文化的情結,也能為中式空間注入現代元素,這是古典與時尚的凝合,新與舊的文化碰撞。
小區名稱:北京新天地
裝修風格:混搭(新中式混搭工業風)
裝修類型:全包
房屋類型:新房裝修
裝修造價:15萬元(施工加主材)
房屋戶型:2室2廳1廚1衛
建筑面積:92平米
部分材料信息:
地板:圣象
地磚:大羅馬
墻漆:美國大師
吊頂:歐斯寶
開關:西門子
櫥柜:澳比德
衛?。好赡塞惿?/span>
鞋柜:銳意空間實木顆粒板板材
家具:淘來的古董家具

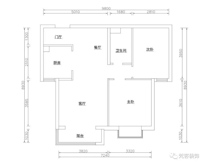
? 原始平面圖
從原始平面圖和平面布置圖的對比來看,原房型結構比較合理,所以并沒有任何房型改動。這套房子建筑面積為92平米,平日只有康先生和太太,外加一直喵星人居住,2室2廳剛剛好。
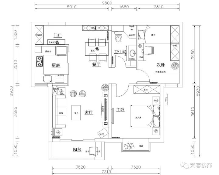
∇ 平面布置圖

房型雖然沒有改動,但弊端也顯而易見。門廳直面一堵墻,進門非常壓抑。設計師張曉紅為此做了調整,四大亮點,使入室處華麗變身:
門廳右側設計了衣帽柜,縮小門廳寬度,減少壓抑感;
為了壁畫墻和其他墻面更好銜接,以灰磚作為飾面,同時體現出康先生的胡同情結;
玄關做了裝飾,壁畫選用客戶自己去法海寺拍攝的廣目天王圖案;
門廳吊頂選用壇城壁畫做裝飾,地面與之相呼應,采用彩條磚做了地面造型。

? 鞋柜采用實木顆粒板板材,是現在定制家具中常用到的板材,其握釘力好,強度高,穩定性好,價格又比實木便宜。
順便感受一下尋找灰磚的離奇經歷:
為了滿足康先生的胡同情結,玄關特別選用了灰磚裝飾。為了尋找紋理自然,更加接近胡同原始風貌的磚,找遍了建材市場,最后還是在萬能的淘寶找到了。再經過大家手動DIY特殊處理,最終達到想要的效果。

? 設計好的門廳空間裝飾豐滿,毫無壓抑感。燈光設計巧妙,不僅起到照明、裝飾作用,還非常人性化,頂燈照亮、射燈提亮壁畫,鞋柜中部的燈方便拿取物品。
因為康先生的父親是佛學工作者,康先生從小耳濡目染,對中國傳統的文化非常熱愛,經常和太太出國游玩,也比較喜歡異域風情的東西。家里很多飾物是出國旅行時帶來的,也有不少朋友送的,比如門廳柜上放置的大象擺件是客戶送的。餐廳被裝飾的溫暖有情調,可以看出夫妻二人非常熱愛生活。


? 一起感受擁有200年歷史的法國古董餐椅。
康先生是攝影師,因為自己就是從事藝術工作的,想法頗多。世界各地淘來的寶貝,以及全國各地帶來的飾品,也要考慮如何用到新家中。
玄關柜、門廳邊柜都是印度風,它們是康太太的心愛之物。
餐邊柜和客廳邊柜、茶幾都是實木的,價格感人,本來客廳邊柜想要紅色,但需要的尺寸4個月后才有貨,這算是一個小小的遺憾。
電視柜比較有年代感,是康先生原有房子的老家具,一直保留到現在。
餐桌餐椅是設計師、康先生、康太太從不同地方淘來的,其中兩把餐椅是法國古董家具,已有200年歷史。

? 電視背景墻上的唐卡是客戶多年前去西藏朋友贈送的,裝飾木質雕花是有些年頭的老舊物件,在高碑店古典家具一條街淘來的。
客廳古香古色,無論是色調的搭配還是材質的選用,甚至包括家具的選擇,都為這個空間增添復古的韻味。而各種裝飾畫、小擺件,也是點睛之筆,用的恰到好處。
電視背景墻非常搶眼,用硅藻泥做飾面,為了更原始更自然一些,又用涂料刷了一遍。硅藻泥因為有不同的肌理效果,是墻漆、壁紙達不到的,南方比較普及,北方的業主在逐漸接受中。如果想要墻面有肌理感可以考慮,但硅藻泥不防水,使用空間需要注意。
沙發背景的裝飾畫是康先生給設計師的一個固定命題??迪壬Y識的廣東朋友親自畫了幾幅畫,歷時5個月,然后郵寄過來進行裝裱。畫的尺寸偏大,買沙發的時候就要考慮買比較矮的。

? 背景墻極強的現代感、粗糙原始的紋理和裝飾木雕的古典美,與沙發墻工筆畫的精美細致形成鮮明對比。
和客廳相比,臥室更顯溫馨寧謐,溫潤的色調讓這個空間充滿安寧。簡約復古的家具,防腐木飾面的飄窗,都給主人帶來家的祥和。

陽臺榻榻米也是一得力制作,滿足了夫妻二人平時喝茶、做手工的興趣愛好,還兼顧收納儲蓄功能。推拉門關上,就是一個獨立的私享空間。


古韻風情從客廳蔓延到廚房,古于風格,新于現代化設備,正是我們經常說的家要好看又好用。
廚房具有得天獨厚的采光優勢,可以考慮用深色系打造整個空間,延續復古風格。以原木紋理的櫥柜搭配灰色墻磚、甲骨文花片,整個空間就是現代與古典的交融。
廚房設計中,最人性化的地方就是櫥柜的感應燈,感應燈利于廚房工作,避免背光帶來的操作不便。

? 柜體下方的感應燈直射操作臺,更方便廚房作業。
和廚房的復古相比,洗手間的風格相對現代。大膽運用金屬感的墻地磚,搭配銅色衛浴五金,使這個空間充滿不羈的韻律。馬桶后方用花片做背景墻、鏡面邊框以花片裝飾,這和整個空間藏文化理念相吻合。
因為墻地磚是深色的金屬磚,所以在采光上做了不同的光源設計,除了三合一的暖風帶有照明作用外,還增加了頂部筒燈和鏡前燈,方便使用。

這套案例從設計到裝修完工,歷時三個多月,康先生夫婦最滿意的是電視背景墻和陽臺榻榻米的設計,前者帶來藝術享受,后者是興趣小空間。
最后,一起來認識這套案例的設計師——梵客家裝具有藝術家情懷的首席才女設計師張曉紅,她為業主實現了心愿,讓一個普通空間變成守護人一生的溫暖港灣!
聲明:本文由梵客家裝提供,轉載請聲明出處!
讓家一大再大的體驗
已有 86 位業主獲得服務
新用戶專享優惠